New Student-Apartments in one of Berlins best locations available
Adresse:10179 Berlin
Objekttypen:Wohnung
Objekt ID:7001
Zimmeranzahl:1.0
Wohnfläche (ca.):11.0 m²
Baujahr:
Provisionspflichtig:nein
Käuferprovision:
Kaltmiete: 780 EUR
Warmmiete: 780 EUR
Kaution: 2.340 €
Ansprechpartner: Silva Bürschgens
Telefon:030 31806594
Mobil:0173 7052589
E-Mail:sv@blp-management.com
Beschreibung
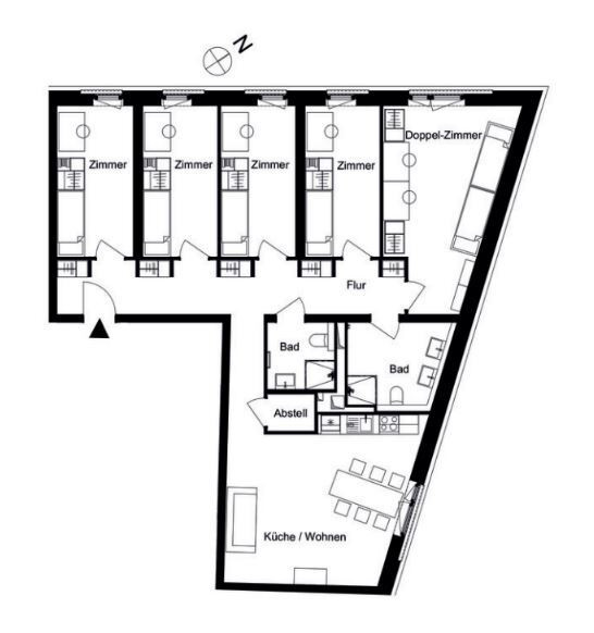
There are five rooms per flat, see floorplan attached . 4 single rooms and one double room. The single rooms are around 11m², the double rooms about 20m². Each flat has two bathrooms and one kitchen to share. All rooms are furnished and the kitchen is equipped with a basic inventory.
Double rooms are meant for students who bring their partner or want to accommodate a visitor (which is not possible in the single rooms). In that case, both students need to complete the application form and nominate each other as preferred roommate, so we know there is a mutual agreement.
Sonstige Angaben
We offer rooms for students who stay only for a summer semester, who start their studies in Berlin soon and have not yet found the permanent flat and for students from abroad who want to make themselves familiar with the citiy before entering into a longer rental commitment. We offer fixed rental periods of four months: May-August. If you are interested in renting a room, please use the application form. Viewings do not take place
A valid enrollment number is required!!
single room: 780€/month all inclusive, no overheads. ( heating, electricity, internet, washing machine & tumble dryer.)
double room: 1.160€/month (all including)
The flats are located in Berlin Mitte Mühlendamm1, 10179 Berlin .
The building was opened in the second half of 2024 so its brand new.
Very central location, connected to public transport, supermarket is across the road.
